+359 887 87 87 52

Продажба, Къща, 175 кв.м. Област Русе, с. Червена вода

Справедлива цена

Цена

€ 218000

(1246 €/кв.м.)

175 кв.м.

Код

6176

Описание Карта Подобни имоти

Описание

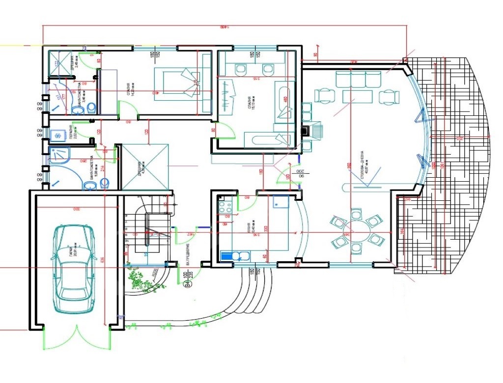
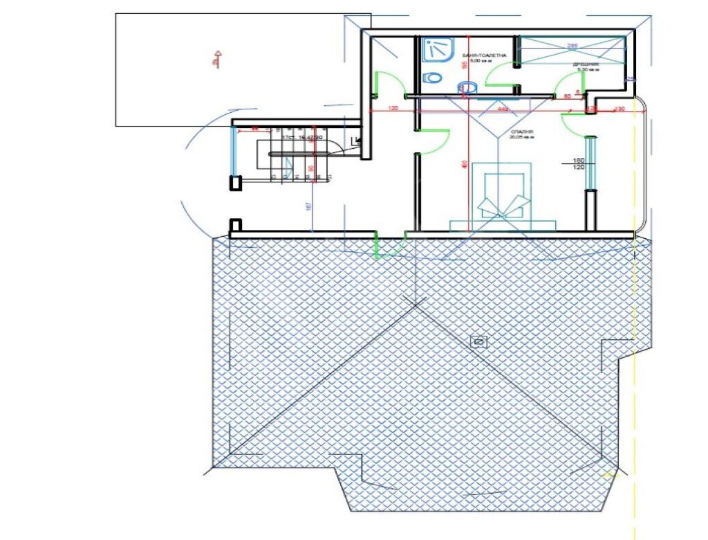
Сиана Недвижими Имоти предлага на Вашето внимание новострояща се, самостоятелна едноетажна къща за продажба в село Червена Вода, Община Русе. Имотът е с планувана застроена площ от 175 кв.м., а прилежащото дворно място с площ от 600 кв.м. Проектът предвижда изграждането на къща на един етаж, състоящ се от три спални, от които едната със собствена баня и санитарен възел, дневна с обособена кухненска и трапезна част, антре, още една баня със санитарен възел и гараж. При желание от страна на купувача, е възможно изграждането на втори етаж с обща разгъната застроена площ от 245 кв.м. Къщата ще бъде предадена до ключ: с поставена PVC дограма, подови настилки, санитария. Довършителните ремонтни дейности ще бъдат съгласувани изцяло с желанията на купувача. Дворът ще бъде предаден с извършена вертикална планировка - бетонови пътеки и бетонов пояс, както и с поставена ограда. Имотът притежава пълна проектна документация и платени такси. Доколкото е допустимо, по желание на купувача, могат да бъдат извършени промени в проекта. Продажната цена включва настоящия проект за изграждане на едноетажна къща със застроена площ от 175 кв.м. Възползвайте се от тази чудесна оферта и създайте своят дом - мечта сега!

Повече информация за имота

Площ 175 кв.м
Тип строителство Монолит
Тип отопление Няма
Етаж Без
Брой стаи 4
Брой бани 2
Брой спални 3
Състояние на имота Без
Гараж Да
Двор да
Етажност 1 етаж
Парцел 750
Степен на завършеност Ново строителство - в строеж

Карта

Отбелязаната на картата локация е приблизителна!

Ипотечен калкулатор

Област Русе, Къща, с. Червена вода - € 218000

Ипотечна лихва от 2.25% Купете имот от Сиана недвижими имоти с финансиране от банка и вземете по-ниска индивидуална лихва!
€ 218000

€ 174400

Сума на кредита

€ 969 Месечна вноска

15

Запитване до брокер на Сиана

This site is protected by reCAPTCHA and the Google Privacy Policy and Terms of Service apply.

Подобни имоти